Immogalaxy.ch

gmap

6802 Rivera  
 Wohnung zu verkaufen


Via Bricola

weitere Ergebnisse...
Veröffentlicht von:
L'Idea Immobiliare SA - logo

L'Idea Immobiliare SA
Via Campagna 2E, 6512 Giubiasco
T. +41 91 605.68.67 - F. +41 91 604.62.68
info@idea-immobiliare.ch

Kontaktperson
Claudio Falcetti
T. +41 91 605 68 67
info@idea-immobiliare.ch



gmap  

6802 Rivera  Wohnung zu verkaufen


spacer  Via Bricola
weitere Ergebnisse...


Das Wichtigste in Kürze
ID Immogalaxy: 48970
Verfügbarkeit: zu vereinbaren
Preis: CHF 565'000.-
3½ Räume
Intern: 93 m²
Terrassen: 15 m²
Wohnungen: 26


Beschreibung
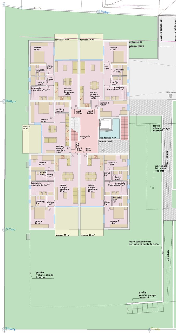
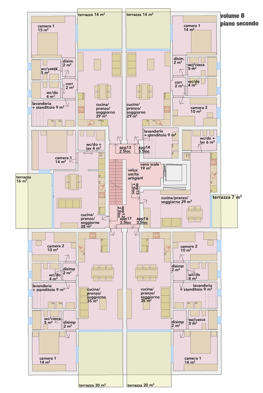
Nuovo Appartamento all'ultimo piano con simpatica terrazza. La Residenza Bricola sorgerà nel cuore di Rivera, poco distante dallo Splash & SPA, dalla funicolare del Monte Tamaro e dallâ??imbocco dellâ??asse autostradale. Lâ??edificazione è inserita accanto ad un ampia zona verde, in pochi minuti a piedi si puoâ?? raggiungere la fermata dell'autopostale e la stazione FFS. Lâ??edificazione prevede la realizzazione di due stabili indipendenti di 3 piani su due livelli differenti che distribuiscono le abitazioni tra il piano terreno ed il secondo piano. Lâ?? autorimessa completamente interrata forma una piattaforma verde che diventa base dâ??appoggio e giardino. Al piano interrato trovano posto anche le cantine ed i locali tecnici. La parte tecnica utilizza soluzioni di ultima generazione:La produzione di calore avviene tramite termopompa aria-acqua che beneficia dell'energia prodotta dai pannelli fotovoltaici posati sul tetto. Particolare attenzione è stata posta ai temi energetici: L'isolazione esterna è con cappotto isolante, mentre i serramenti sono ben isolati rispettando le severe norme vigenti. E' inoltre prevista la predisposizione per la posa di wallbox per auto elettriche. Lâ??organizzazione interna degli appartamenti è caratterizzata da una chiara suddivisione tra la zona giorno e la zona notte, gli spazi abitabili risultano generosi, accoglienti e ben distribuiti. La scelta personale delle rifiniture valorizzerà notevolmente gli ambienti della propria abitazione. Particolarità molto apprezzate sono i doppi servizi e la lavanderia privata inserita all'interno dell'abitazione che conferiscono un'ottima comodità d'utilizzo. Lo spazio esterno privato è garantito dalla comoda terrazza. 2 posti auto in autorimessa compresi nel prezzo.


Informations Forderung
spacer
spacer
spacer
spacer
spacer
Antwort per:    
spacer



Formular durch reCAPTCHA geschützt, es gelten die Datenschutzbestimmungen und Nutzungsbedingungen von Google!
 

Veröffentlicht von:
L'Idea Immobiliare SA - logo

L'Idea Immobiliare SA
Via Campagna 2E, 6512 Giubiasco
T. +41 91 605.68.67 -
F. +41 91 604.62.68  
info@idea-immobiliare.ch

Kontaktperson
Claudio Falcetti
T. +41 91 605 68 67
info@idea-immobiliare.ch